All guest rooms in Chipman Inn- Your classic B&B in Vermont | Apartment in Ripton

6 Bedroom Apartment in Bread Loaf, Ripton
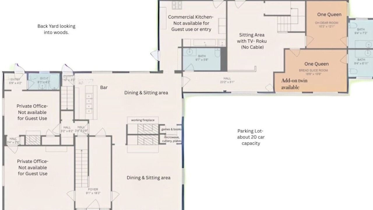
Escape to the mountains and enjoy exclusive use of all six guest rooms at the historic Chipman Inn. This full-service stay includes a homemade breakfast each morning and beverage service in the evening featuring Vermont beers on tap and a rotating wine selection. Your group will have private access to the guest rooms, dining room, and shared common spaces, perfect for small gatherings, retreats, or family trips. Please note: the kitchen and bar are not available for guest use—but your innkeeper is on-site to cook, pour, and help make your time here relaxing and memorable. Located in Ripton, just off Route 125, the inn is surrounded by nature, with hiking trails, rivers, and the Middlebury Snow Bowl all nearby.
All guest rooms in Chipman Inn- Your classic B&B in Vermont is located in Bread Loaf. All guest rooms in Chipman Inn- Your classic B&B in Vermont provides accommodation, featuring Security/Safety, Breakfast, Child Friendly, among other amenities. This Apartment features Security/Safety, Breakfast, Child Friendly, to make your stay a comfortable one.
All guest rooms in Chipman Inn- Your classic B&B in Vermont has 6 Bedrooms , 5 Bathrooms, and max occupancy of 21 people. The minimum rental for this property is 1 nights, but this can change depending on the season you plan on staying. Previous guests have given good rated it, and VRBO labeled it a top-rated Apartment because of the excellent services rendered by the owner or manager of this Apartment, and has consistently provided great experiences for their guests. Most families or guests that use it recommend it to their friends and some of them are repeat guests. Apartment has a friendly neighborhood, and the Bread Loaf has interesting places to visit. If you want to learn more about the Apartment in Bread Loaf, such as places to visit and things to do nearby, you can check below to learn more.
Amenities
Facility Overview
-
Heating
-
Air conditioning
-
Hair dryer
-
5+ bathrooms
-
6 bedrooms
-
Bed sheets provided
-
Breakfast available for a fee
-
Dining table
-
Fireplace
-
Dishwasher
-
Microwave
-
Toaster
-
Refrigerator
-
Coffee/tea maker
-
Onsite parking
-
Electric car charging station on site
-
No pets allowed
-
Smoke-free property
-
Bicycle on site
-
TV
-
Unit size: 2992 sq ft (278 sq m)
-
English
-
Desk
-
Children's books
-
Iron/ironing board
-
WiFi available
-
Garden
-
Smoke detector installed (host has indicated there is a smoke detector on the property)
-
Fire extinguisher
-
Carbon monoxide detector installed (host has indicated there is a carbon monoxide detector on the property)
-
First aid kit
Policies
Extra-person charges may apply and vary depending on property policy government-issued photo identification and a credit card, debit card, or cash deposit may be required at check-in for incidental charges host has indicated there is a carbon monoxide detector on the property host has indicated there is a smoke detector on the property parties and events (including family gatherings, birthday parties and weddings) are allowed on site; maximum attendees: 50 safety features at this property include a fire extinguisher and a first aid kit special requests are subject to availability upon check-in and may incur additional charges; special requests cannot be guaranteed this property is managed through our partner, vrbo. you will receive an email from vrbo with a link to a vrbo account, where you can change or cancel your reservation